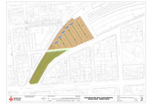
L’Ajuntament de Tortosa construeix el segon aparcament als antics terrenys de Renfe. Aquesta setmana han començat els treballs, adjudicats a l’empresa local Also Casals per 400.800 euros. El nou pàrquing tindrà 284 places per a vehicles i un espai per a motos al nou vial que s’obrirà entre les rondes Reus i Docs, que serà d’ús exclusiu per a vehicles d’emergències i vianants. El projecte inclou un passeig enjardinat des de l’aparcament a l’avinguda Generalitat, on s’enderrocarà el mur actual i s’anivellarà l’entrada a la nova zona verda. L’alcalde Jordi Jordan ha destacat que és ‘un projecte estratègic‘ per reordenar el centre comercial i els barris de l’Eixample i el Temple, desconnectats pels vestigis de l’antiga via del tren.

Les obres, que duraran quatre mesos, suposaran una transformació al centre de Tortosa, on les antigues vies del tren han sigut una gran barrera de mobilitat entre barris, durant prop de quatre dècades. El primer aparcament de 116 places, situat entre l’estació de tren i la Ronda Docs, es va posar en marxa l’abril de 2023, i l’actual govern municipal farà la construcció del segon pàrquing, però incloent una entrada per un passeig enjardinat des de l’avinguda Generalitat.

Un projecte més sostenible:
L’alcalde de Tortosa, Jordi Jordan, ha defensat que es presenta un projecte ‘molt més complet‘ que el presentat per Junts per Tortosa en el mandat anterior i que s’ha modificat per incloure una zona verda i ampliar l’àmbit d’actuació en més de 10.000 metres quadrats que permetrà ‘integrar‘ i reordenar millor el centre de la ciutat. «Era una de les nostres actuacions prioritàries en matèria de mobilitat i en matèria de comerç, un projecte estratègic que estem molt orgullosos de, finalment, poder-lo tirar endavant», ha remarcat el batlle.

El projecte també inclou paviment respectuós i sostenible, que permet un millor drenatge de l’aigua de pluja i converteix l’aparcament en un espai més adaptat al context d’emergència climàtica. «No serà una macroplataforma de ciment com s’havia plantejat en el mandat anterior», ha assenyalat. El consistori, a petició del sector comercial, està valorant la possibilitat que al nou aparcament s’hagi de fer ‘un pagament simbòlic‘ per fomentar la rotació de vehicles. El primer aparcament gratuït s’ha convertit en un aparcament ‘dormitori‘ de vehicles i s’estudia de quina manera evitar que passi el mateix amb el segon pàrquing dels terrenys de Renfe.
ACN



