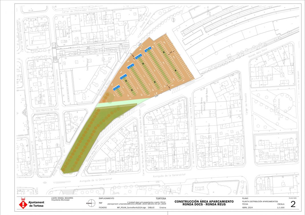
L’Ajuntament de Tortosa ha anunciat la reformulació del projecte per al segon aparcament als antics terrenys de Renfe. Aquesta iniciativa se centrarà en la reordenació de la zona situada entre els carrers Ronda Reus, Ronda Docs i el pas provisional de l’estació. Segons el consistori, la redacció del projecte està a punt de finalitzar, i en les pròximes setmanes s’iniciarà el procés de licitació.
L’alcalde de Tortosa, Jordi Jordan, ha destacat que la nova proposta serà més respectuosa amb l’entorn i els barris de l’Eixample i el Temple. «Mentre que el govern de Meritxell Roigé volia fer un aparcament que era una altra gran plataforma de ciment armat, però ara el que tirarem endavant és un projecte millorat, més verd i molt més amable, amb un paviment de terra compactada i que serà més permeable amb els barris de l’Eixample i del Temple», ha explicat. Jordan també ha assegurat que el projecte ja compta amb una partida pressupostària assignada.
Un projecte que s’anuncia gràcies a una reivindicació de Junts per Tortosa
Aquest anunci arriba després que Junts per Tortosa, en una roda de premsa, reclamés l’agilització del projecte. La portaveu del partit, Meritxell Roigé, ha recordat que l’acord amb Adif per a la recuperació dels terrenys es va tancar el desembre del 2022, quan ella era alcaldessa. L’operació va permetre adquirir els terrenys per 864.000 euros, un 77,6% menys del preu pactat inicialment, que superava els 4 milions d’euros.

A partir d’aquest acord, l’anterior govern va posar en funcionament, la primavera del 2023, el primer dels aparcaments en aquesta àrea, creant 116 places, que segons Roigé «s’ha demostrat que era una necessitat perquè és una evidència que sempre està en plena ocupació». També ha denunciat que, tot i tenir el projecte del segon aparcament preparat des del 2023, aquest encara no s’ha licitat, malgrat els anuncis del govern actual. «Els exigim que no demorin més aquest projecte i el posin en marxa de manera immediata», ha declarat la portaveu.
Redacció L.P.


